Wintergarten
Ihre Wohlfühloase von JED
Mehr Licht, mehr Lebensqualität, mehr Wohnraum
All dies lässt sich mit einem JED Wintergarten verwirklichen. Schaffen Sie sich einen Raum zum Entspannen, einen Ort, um den stressigen Alltag zu vergessen und die Seele baumeln zu lassen. Eine Wohlfühloase für die ganze Familie. Einfach dasitzen, die Natur beobachten und mit Freunden ein gutes Glas Wein genießen.
Die großzügigen Glasflächen schenken Ihnen jede Menge natürliches Sonnenlicht. Das ganze Jahr über können Sie das Schauspiel der Natur hautnah mit verfolgen - und das bei wohliger Atmosphäre. Genießen Sie eine neue Art Lebensqualität und steigern Sie gleichzeitig den Wert Ihres Hauses.
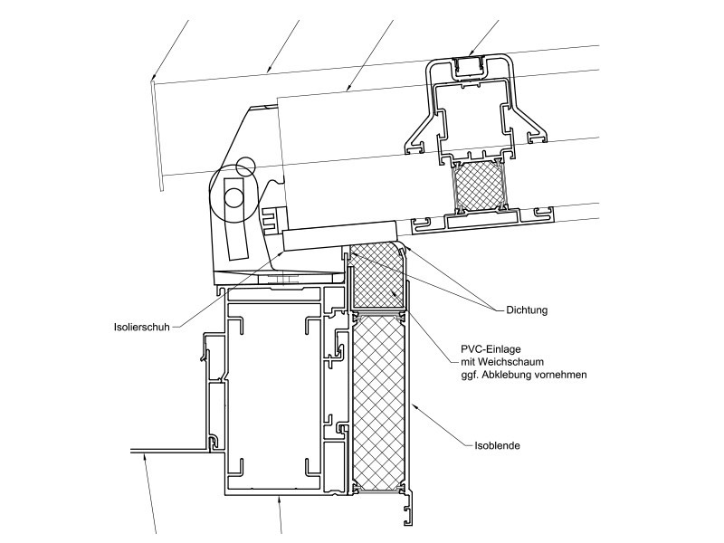
Die Konstruktion - weiterentwickelt seit über 30 Jahren
Wählen Sie aus einer Vielzahl von Varianten Ihren ganz persönlichen Favoriten. Ein JED-Wintergarten besticht durch hohe Montagefreundlichkeit, gradlinige Gliederung und umfassenden Variantenreichtum, neben einem hohen Spielraum für individuelle Gestaltungs- und Ausstattungswünsche.
Eine JED Wintergarten passt sich in jeder Hinsicht Ihren individuellen Wünschen in Bezug auf Form, Farbe und Maße an, aber auch den technischen Grundbedingungen in Bezug auf den Verwendungszweck.
Eine einfache, schnelle und problemlose Montage unter Berücksichtigung eines bis ins Detail vorgefertigten Baukastensystems wurde als zentraler Schwerpunkt bei seiner Konstruktion zugrunde gelegt.
Das System besteht aus stranggepressten Aluminiumprofilen, die in vielen unterschiedlichen RAL-Farben erhältlich sind. Die Profile sind hochwertig pulverbeschichtet. Das garantiert nicht nur eine hohe Leuchtkraft der Farben, sondern ist auch pflegeleicht und langlebig.
JED-Wintergartensysteme sind zu 100% Made in Ostfriesland.
Gerne beraten wir Sie persönlich zum kompletten Wintergarten-Programm von Schüt-Duis.
Wir freuen uns von Ihnen zu hören.
Quelle der auf dieser Seite gezeigten Texte und Bilder: Schüt-Duis Fenster & Türentechnik GmbH & Co.KG

